2nd Residence
2nd Residence Approval
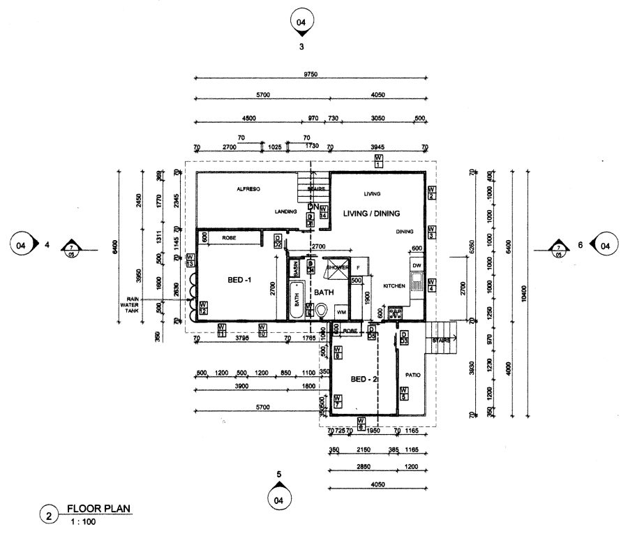
Council has granted permission to build a 2-bedroom, 2nd residence with its own carport on the property. This valuable permission is included with the sale of Pomifer Park. The Approved 2nd residence was specifically designed for the site, optimizing window and verandah views. The building’s slab needs to be laid by 28th Sept, 2028, then you could take time to finish the build.
The 2nd residence could be used for extended family or guests, or even as a profitable Airbnb. Accommodation in the area is highly sort after. Alternatively, the building could be used as a business office, or for some other purpose, such as commercial beauty therapy.
For Sale By Home Owners
Main House Extension
When the 2nd residence is built, there still will be ample vacant space on the property to extend the current house by adding a new two-story wing, looking out towards the croquet lawn and the lovely front garden. The lower-floor could contain an indoor heated pool with and outdoor verandah and the upper-floor a new master suite and other rooms.
The current air conditioning system is powerful enough to also service such an extension, as is the large hot water tank, and the hi-capacity solar power installation.
If desired, adding a new house wing would also allow some walls to be removed in the current house to create larger rooms.

